MENU CLOSE

不動産情報 Property

トップページ 不動産販売情報 栃木市川原田町モデル / 2LDK / 24.50坪

モデル販売 栃木市川原田町モデル / 2LDK / 24.50坪

外構工事済み!高気密高断熱住宅/栃木市運動公園近くのナチュラルなモダン平屋のお家/ご興味のある方は是非お問い合わせくださいませ📞

物件の特徴

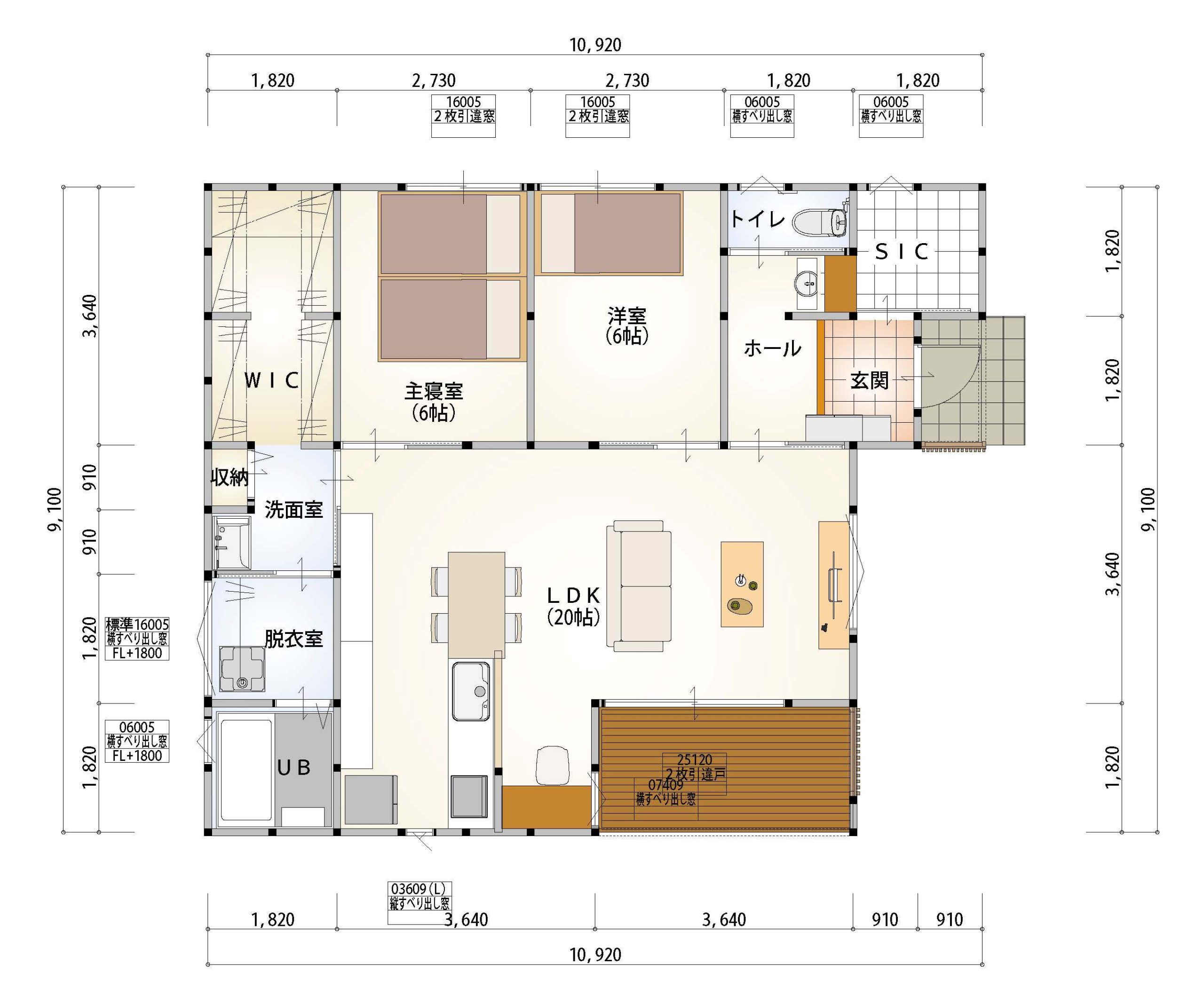
家の中をスムーズに移動できるコンパクトで快適な丁度いい住まい。
約20帖の広々リビング・ダイニング・キッチンがこだわりの平屋住宅。
大容量のウォークインクローゼットや快適な家事動線が魅力。
カーテンや照明、外構アプローチまで整っています!

栃木市総合運動公園に隣接しているので
お散歩やスポーツも楽しめます。
車で5分圏内にイオンあり。周辺環境充実の人気のエリアです。

■販売価格:2,520万円(税込)
 土地+建物+外構(エアコン+カーテン+照明含む)
 宅配ボックス、ポスト
 シューズインクローク・居室2部屋・ウォークインクローゼット・ウッドデッキ
■敷地面積:62.41坪
■延床面積:24.50坪
■性能:断熱等級5・耐震等級3相当
■設備:オール電化(370Lエコキュート、IHクッキングヒーター)

■お支払いシミュレーション
 月々約44,000円
 ※2,520万円を金利1.0%/40年返済時の試算
 ※頭金0円
 ※ボーナス元金返済分:100,000円×年2回

【事前予約特典】
QUOカード 5000円分 プレゼント!!

【 ご来場特典の進呈条件 】
・ご来場2営業日以上前にご予約いただいた方。
・はじめて木の花ホームグループのイベントおよび店舗へご来場される方。
・ご来場いただき事前審査のお申し込みをいただける方
・事前に送付するWEBアンケートにすべてお答えいただいた方。
・家探しを真剣に検討されている方。
<注意>
※1家族様1回限り、全ての条件を満たした方限定の来場特典となります。
※当社からの予約確認、確定のご連絡を以て受付完了となります。
※プレゼントは次回の事前審査結果の打ち合わせ後にお渡しいたします。
※電話予約については承っておりません。
※当プレゼントは木の花ホームグループ共通で一度のみとなります。
 複数ブランドにご来場頂いた際の複数回の進呈はできません。
※このキャンペーンは予告なく終了する場合があります。



来場予約・物件のお問い合わせは下の【お問い合わせボタン】から!
お気軽にお問い合わせください!

物件詳細
設備
所在地
栃木県栃木市川原田町字笹原408番21
販売価格
2,800万円→2,520万円(税込)
最寄駅
東武宇都宮線 新栃木駅
間取り
2LDK
建ぺい率
40%
容積率
60%
接道状況
幅員 東側6.0m・西側4.0m
地目
宅地
用途地域
第一種低層住居専用地域
取引態様
売主
建築確認番号
第SKA023-11-0739号
  • 間取り

    シューズクローゼットやウォークインクローゼットなど収納たっぷり!
    LDKも20畳ある、ゆとりのある間取りになっています!

  • リビング

    20畳の広々としたLDKです。大きな掃き出し窓があるので明るい空間になっています!

  • ウォークインクローゼット

    あると嬉しい大容量のWIC!シーズンオフのお洋服や使用頻度の低いものなどもたくさん収納できます。

  • ユニットバス

    白を基調とした清潔感のあるお風呂です!

アクセスマップ

物件の詳しい情報は
メールかお電話で
お問い合わせください

メールの方はこちら
お電話の方はこちら

メールでのお問い合わせ

必要事項をご記入の上「送信」ボタンを押してください。


    お名前

    フリガナ

    電話番号

    メールアドレス

    ご住所

    お問い合わせ内容

    プライバシーポリシーに同意する

    同意する
    来場予約 資料請求 LINE相談 お問い合わせ